


79设计主打个性家装与色彩空间,
以摩登欧美与时尚混搭风格设计倍受客户推崇,
自创立至今坚持用实景作品诠释实力,
立志成为昆山专业室内设计、
软装配饰与精品施工的推行者和引领者。
关于设计,
他不仅仅只是为了居住
还有居住背后的生活轨迹和生活方式
他讲述的不止是生活的空间
还有自然,分享和爱的话题。
一个家就是一个故事...
本期分享案例 ▎英郡联排别墅
地下室平面方案:

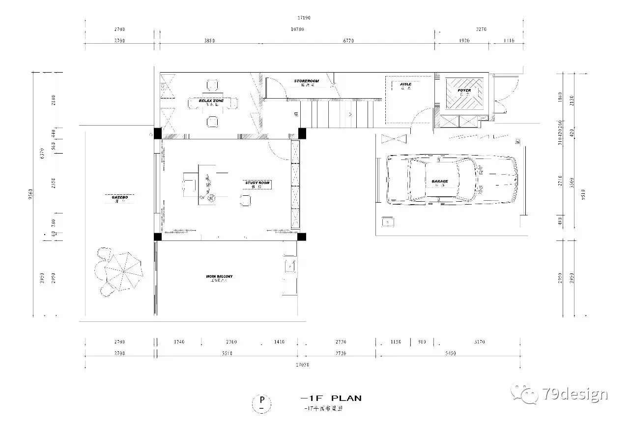
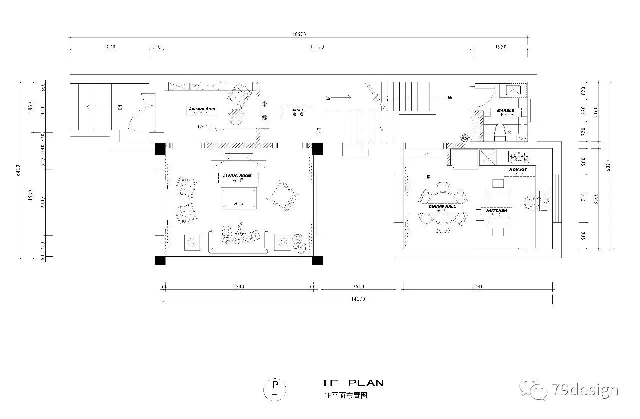
一楼平面方案:

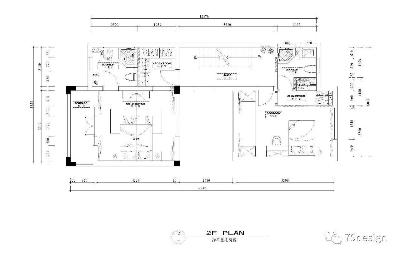
二楼平面方案:

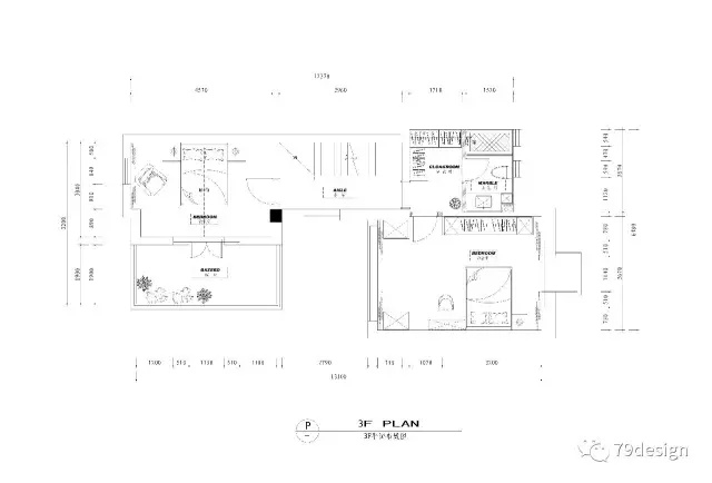
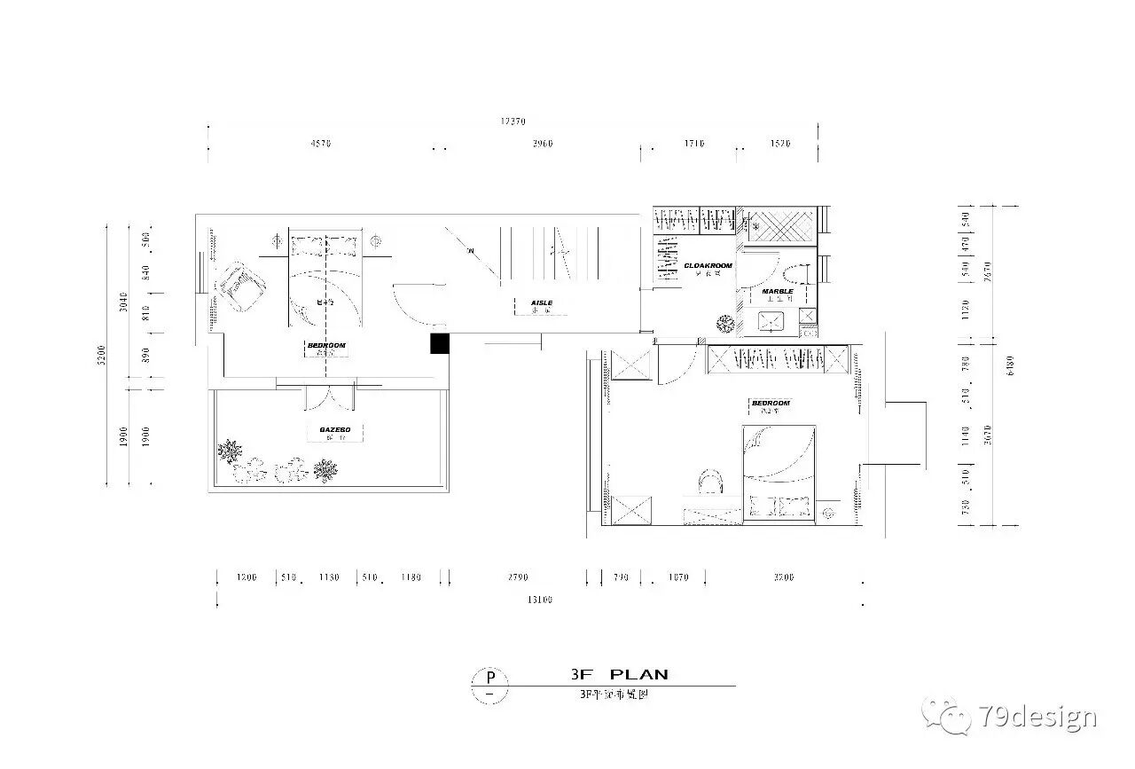
三楼平面方案:

门厅效果图:

客厅效果图:

休闲区效果图:

餐厅效果图:


地下室书房效果图:

主卧效果图方案一:

主卧效果图方案二:

二楼儿童房效果图:

三楼儿童房效果图:

项目名称:英郡联排别墅
建筑面积:300平方
设计公司:79设计-华林装饰机构
设计师:张丽芳 Eleven
主要材料:仿古砖、实木复合护墙板、实木复合地板、实木美式家具
设计说明:本套乡村美式风格从整体设计上采用了深色木饰面和暖色为主色,加上深色美式家具,以此来强调“回归自然”的主题;美式乡村风格突出了生活的舒适和自由,不管是家具还是配饰,还是墙面色彩的选择上,都散发着自然怀旧的典型特征。
本案还多用布艺元素,沙发,窗帘,卡座坐垫均采用棉麻布艺,各种繁复的花卉植物、靓丽的异域风情和鲜活的鸟虫鱼图案都很受欢迎,舒适和随意。而软饰上对铁艺铜镜,瓷盘,复古相框的运用也相对较多,让我们的视觉质感相当够味。

设计师:张丽芳 Eleven
79设计 资深首席设计师
华林装饰机构 资深首席设计师
南京艺术学院
CIDA注册室内设计师
中国室内装饰协会会员
2014亚太室内设计(昆山)大奖赛 方案类 银奖
2014亚太室内设计(昆山)大奖赛 大宅、平层类 银奖
2016亚太室内设计(昆山)大奖赛 方案类 银奖
2016亚太室内设计(昆山)大奖赛 大宅、平层类 铜奖
2016亚太室内设计(昆山)大奖赛 别墅类设计 铜奖
大宅、别墅案例:
鱼尾狮别墅、檀香园、天使湾、森林别墅、紫怡花园、品院、天成佳苑平墅、清风华苑、花都艺墅、中航城别墅、通澄美墅、江南明珠苑、国际艺术村、弘辉首玺、时代中央社区、金色森林、伯爵大地、天地华城、中大未来城、巴比伦花园、
商业、公共案例:
魔厨粤式主题餐厅、龙工叉车专营店、亚香香料总部会所、嘉科环保(昆山)设备有限公司行政楼、展宇波纹管(昆山)有限公司行政楼、天瑞电子(昆山)有限公司行政楼、
(部分案例)
大宅,别墅案例
大上海高尔夫别墅、泰泓花园、檀香园、中大艺墅
宝岛别墅、星海花园、鱼尾狮别墅、北门别墅、
远东世纪别墅、郁金香花园、峰水佳苑、水秀艺墅、森林别墅、
紫怡花园、卿峰丽景、淀湖桃源、品苑别墅、
天成佳苑平墅、清风华苑、绿中海平墅、御墅临峰、
枫桥半岛、花都艺墅、中航城别墅、通澄美墅、锦绣蓝湾、
阳城怡景苑、双湖湾、中航城、森林半岛、江南明珠苑、昆山花园
、国际艺术村、阿里山花园、弘辉首玺、时代中央社区、
伯爵大地、天地华城、君悦豪庭、华敏世家、九方城、
金鹰国际、昆玉九里、华润国际社区、
同进君望、中大未来城、中星城际广场、滨江皇冠、江南理想……
商业,公共案例
鲸咖啡、柚子·林主题餐厅、如东东旭高尔夫会所、
启东棒·约翰披萨加盟店、魔厨粤式主题餐厅、龙工叉车专营店、
亚香香料行政楼-实验楼、亚香香料总部会所、
嘉科环保(昆山)设备有限公司行政楼、展宇波纹管(昆山)有限公司行政楼、
天瑞电子(昆山)有限公司行政楼、圣奥家具(昆山)有限公司展示厅……
